Italiano
190.000 €

APPARTAMENTO RISTRUTTURATO CON INGRESSO A DUE

Appartamento in vendita • Castelfranco Piandiscò - VIA DEL PALAGIO
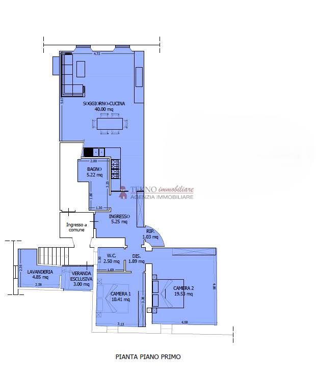
Pian di Sco' appartamento a piano primo con ingresso a due senza spese condominiali completamente ristrutturato, tetto, facciate e solai nuovi, composto da ingresso, ampio soggiorno pranzo con angolo cottura e camino, due camere, doppi servizi, ripostiglio, veranda esclusiva e locale lavanderia oltre posti auto scoperti ma con possibilità di ampia cantina- box a piano terra. Possibilità di scelta materiali di finitura e cessione detrazioni fiscali. Consegna dicembre 2026.
Caratteristiche principali
Codice
A/0826
Città
Castelfranco Piandiscò
Categoria
Appartamento
Prezzo
190.000 €
Locali
3
Camere
2
Bagni
2
Mq
100
Piano
1
Classe energetica
In fase di valutazione
Stato Immobile
Ristrutturato
Grado
Medio
Lati Liberi
2
Tipo Soggiorno
Sala da Pranzo
Tipo Cucina
Abitabile
Riscaldamento
Autonomo
Tipo Riscaldam.
Caldaia
Tipo Impianto
Radiatori
Fonte Energetica
Metano
Acqua Calda
Caldaia
Infissi
Legno Doppio Vetro
Serramenti
Buono
Persiana
Tapparella Legno

Accessori: Camino, Doppi Vetri

Mappa
VIA DEL PALAGIO , Castelfranco Piandiscò (AR)
Condividi su
Cookie preference