Italiano
420.000 €

TERRATETTO CON RESEDE ESCLUSIVO E TERRAZZA ABITABILE

4 o più locali in vendita • Figline e Incisa Valdarno (Figline Valdarno) - Via Frittelli
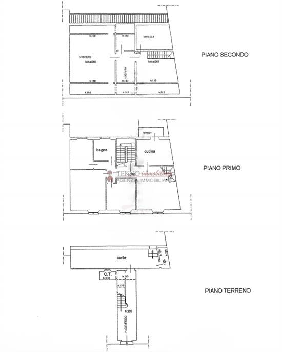
NOSTRA ESCLUSIVA Figline pressi piazza centrale e stazione appartamento tipologia terratetto in palazzina storica con facciata in stile con bozze in pietra, doppio ingresso indipendente, di ampia superficie con sviluppo su tre livelli. L'appartamento unico nel suo genere ha ingresso principale dalla via pubblica a piano terra dove si trova il vano scale oltre ripostiglio e resede tergale con un'ulteriore accesso dal parcheggio pubblico, dall' ingresso del piano terra si diparte una scalinata in pietra di collegamento al piano primo dove si trovano soggiorno pranzo con camino, cucina con balcone, disimpegno, tre camere matrimoniali e sala da bagno, dal soggiorno si diparte una scala in legno addossata a parete di collegamento al piano sottotetto abitabile composto da due ampi locali oltre accessori tra cui una terrazza a tasca panoramica. L'immobile nella sua struttura presenta molteplici potenzialità e nel caso di richiesta c'e' la possibilità anche di acquisto con soluzioni di ammodernamento.
Caratteristiche principali
Codice
T/0226
Città
Figline e Incisa Valdarno (Figline Valdarno)
Categoria
4 o più locali
Prezzo
420.000 €
Locali
7
Camere
3
Bagni
2
Mq
200
Mq Giardino
20
Balconi
1
Mq Balcone
4
Terrazzi
1
mq Terrazzo
15
Piano
1
Classe energetica
In fase di valutazione
Stato Immobile
Buono
Grado
Signorile
Posizione
Centro Storico
Panorama
Vista Aperta
Lati Liberi
2
Giardino
Cortile
Tipo Soggiorno
Salone
Tipo Cucina
Abitabile
Riscaldamento
Autonomo
Tipo Riscaldam.
Caldaia
Tipo Impianto
Radiatori
Fonte Energetica
Metano

Accessori: Camino, Doppi Vetri, Ripostiglio

Mappa
Via Frittelli , Figline e Incisa Valdarno (FI)
Condividi su
Cookie preference